
Cairo, New Cairo City, The 5th Settlement, 5th Settlement Compounds, Riviera heights
NOVUS STANZA
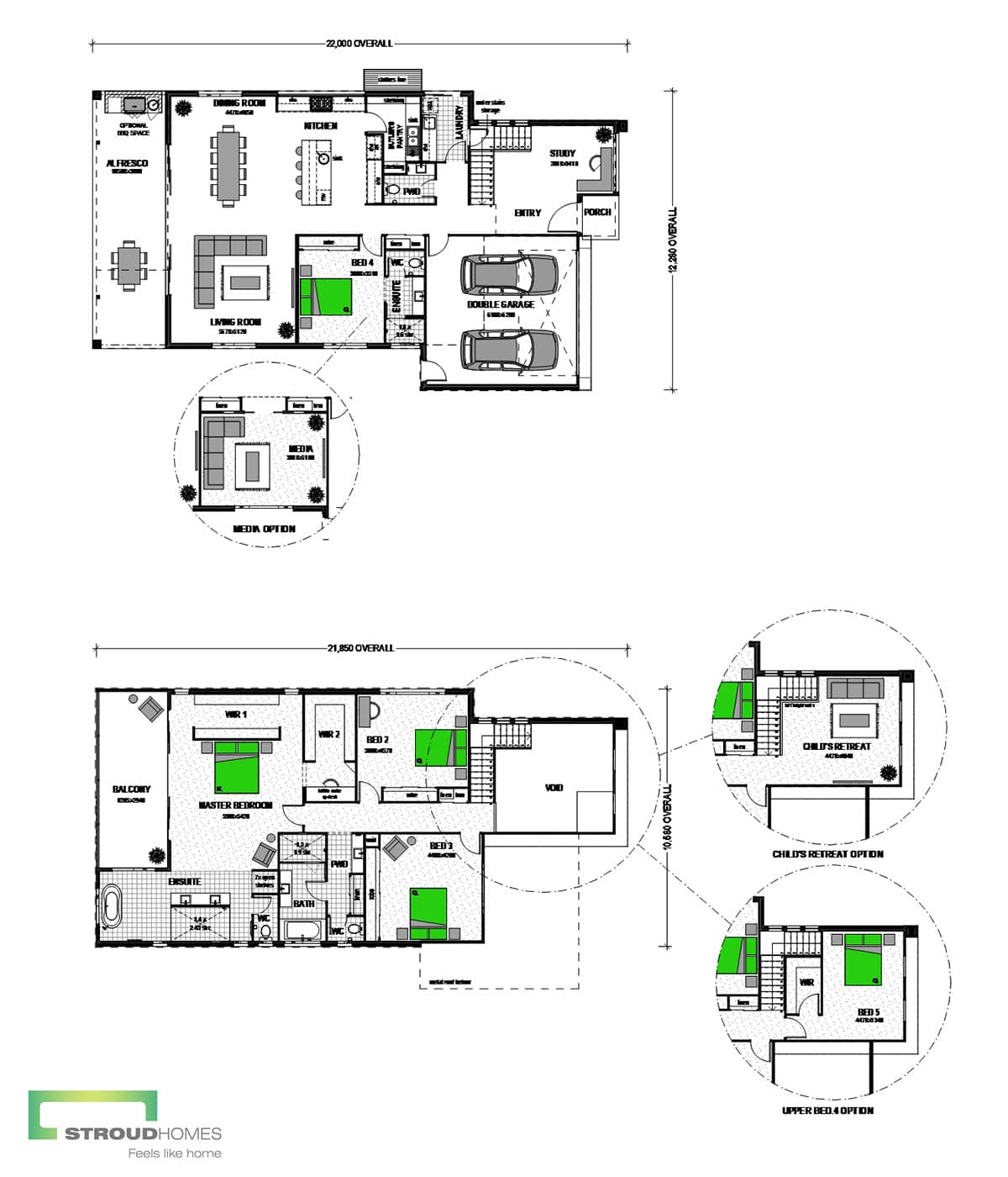
Riviera Heights is located in New Cairo, Cairo. The developer of Riviera Heights is Novus Stanza. The property types in Riviera Heights Villa with a property size from 430 - 430 Sqm.
The completion date for Riviera Heights is 2023 and the finishing for the properties are Core and Shell.
Here are more details about the prices of the Villa in Riviera Heights :
Riviera Heights in New Cairo is a prestigious real estate project that offers an exceptional living experience in one of Egypt's most sought-after locations. With its lavish amenities, prime location, and diverse range of properties, Riviera Heights presents a compelling investment opportunity. Amenities and Facilities: - Expansive Swimming Pools - Fitness and Wellness Center - Green Landscaped Areas - Clubhouse and Social Spaces - 24/7 Security Location and Connectivity: Riviera Heights enjoys a prime location in New Cairo, a highly desirable area known for its upscale living and convenient access to key destinations. - Cairo International Airport: Located approximately 25 km away. - Pyramids of Giza: Explore the iconic pyramids, situated approximately 45 km from Riviera Heights. - Major Parks: Discover nearby famous parks such as Al-Azhar Park and Family Park, offering green spaces and recreational activities for residents to enjoy. - Major Malls: Indulge in shopping and entertainment at nearby renowned malls, including Cairo Festival City Mall and City Stars Mall, both located within a 20 km radius. - City Center: Riviera Heights provides convenient access to the heart of Cairo, with the city center approximately 25 km away. Property Sizes and Types: Riviera Heights offers a diverse range of property sizes and types, catering to different preferences and lifestyles. - Apartments: Choose from spacious studio to three-bedroom apartments, providing elegant living spaces for individuals and small families. - Villas: Experience the epitome of luxury in expansive villas with multiple bedrooms, private gardens, and contemporary amenities, ideal for larger families seeking opulence. - Townhouses: Stylish and modern townhouses offer a perfect blend of space and comfort, featuring well-designed layouts and high-quality finishes.
Share On
Facebook
Linkedin
Twitter
Whatsapp
SMS
Mail